-
-
-
Tổng tiền thanh toán:
-
3 bước xây dựng hố thang máy đúng kỹ thuật
Đối với những công trình mà chủ đầu tư làm việc cụ thể với đơn vị thang máy và ký kết hợp đồng mua thang máy ngay từ giai đoạn đầu từ lúc thiết kế, hoặc bắt đầu khởi công công trình thì công ty thang máy có trách nhiệm cung cấp bản vẽ thiết kế phù hợp với loại thang cho từng công trình và cử nhân viên tư vấn và giám sát quá trình thi công hố thang máy. Tuy nhiên, không phải chủ đầu tư nào cũng làm việc được ngay từ đầu như vậy, vì đối với thang máy, khâu xây dựng hố là rất quan trọng chưa kể đến việc nếu xây dựng sai thì ảnh hưởng rất lớn đến chất lượng thang máy khi lắp đặt, phải cải tạo, sửa chữa dẫn đến tốn kém về tiền bạc lẫn thời gian, do đó khi xây dựng hố thang cần phải lưu ý những vấn đề sau.

1. chuẩn bị xây dựng hố thang máy :
Đầu tiên hãy liên hệ với bên thang máy và bên thiết kế xây dựng nhà để cùng bàn bạc và đưa ra phương án xây dựng hố thang cho hợp lý. Việc cân nhắc sử dụng loại thang nào cũng rất quan trọng, thang máy nhập khẩu hay thang liên doanh thang có phòng máy hay thang không có phòng máy, tải trọng bao nhiêu, tốc độ như thế nào? Bởi những yếu tố trên sẽ quyết định đến kích thước hố thang máy.
Việc cung cấp bản vẽ tư vấn xây dựng hố thang là rất cần thiết để đảm bảo kỹ thuật trước khi xây dựng.
Bản vẽ mặt cát dọc hố thang máy

2. Xây dựng hố thang máy.
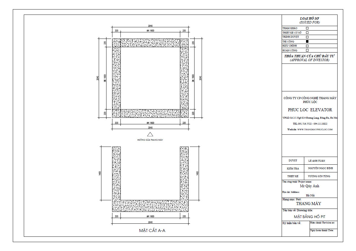
- Xây dựng hốt PIT:
Về chiều sâu hố pit tính từ mặt sàn hoàn thiện tầng dưới cùng ( Tức là cốt 0.0) sử dụng thang máy đến mặt hoàn thiện của hố thì do tốc độ thang máy quyết định. Ví dụ: Thang máy chạy với tốc độ 60m/phút thì hố pit tiêu chuẩn là 1400mm, còn tốc độ 90m/phút là 1500. Tốc độ càng cao, yêu cầu hố pit càng sâu. Hố PIT phải đảm bảo bảo khô ráo, không bị thấm nước ngay cả khi khoan sâu 100m để định vị các thiết bị tại đáy hố. Do đón thông thường toàn bộ bốn mặt và đáy hố sẽ được đổ bê tông liền khối dày 220mm trở lên.

- Bố trí các đà kỹ thuật:
Khi xây dựng hố cần đặt biệt lưu ý đến việc xây các đà kỹ thuật để cố định rail dẫn hướng cabin, rail dẫn hướng đối trọng và treo cánh cửa tầng. Hố thang sẽ có 2 hệ thống đà bê tông kiểu này, 1 là đà giữa tầng được bố trí 3 mặt hố thang và đà linteau ở cửa thang máy được đặt ở độ cao là 2300mm so với mặt sàn. (Xem hình 2)

- Xây dựng phòng máy thang máy:
Đối với việc xây dựng phòng máy phải đảm báo yếu tố kỹ thuật về chiều cao, thông gió và tránh các tác nhận gây hại như thời tiết, chuột… để thang có thể hoạt động bền bỉ theo thời gian, công tác bảo trì bảo dưỡng định kỳ cũng được thuận lợi
Một là về chiều cao OH (OverHead), đây là chiều cao thông thủy tính từ mặt sàn tầng trên cùng đến sàn phòng máy. Cũng như chiều sâu hố PIT, chiều cao OH tiêu chuẩn cũng phụ thuộc vào tốc độ thang máy. Ví dụ: Thang máy tốc độ 60m/phút là 4200mm còn tốc độ 90m/phút là 4500.

Hai là mặt sàn phòng máy: Trước khi đổ bê tông sàn phòng máy cần phải đổ dầm khóa bốn mặt hố thang và cần phải bố trí các lỗ kỹ thuật trên sàn phòng máy. Vị trí và kích thước các lỗ kỹ thuật này như thế nào là phụ thuộc vào loại thang, chính vì vậy khi xây dựng đến phần này, nếu có thể chủ đầu tư nên liên hệ với công ty thang máy để được tư vấn trực tiếp tại hiện trường.
Ba là làm móc treo balang: Móc treo palang có vai trò hỗ trợ trong quá trình lắp đặt, kéo các thiết bị có trọng lượng nặng lên phòng máy và dùng để phục vụ cho việc thay cáp sau này. Móc palang phải được thiết kế để đảm bảo chịu tải theo thiết kế cũng như được đặt đúng vị trí.

3. Khâu hoàn thiện cửa thang máy:

Đây là khâu cuối cùng trong hạng mục hố thang máy và thường được tiến hành sau khi đơn vị cung cấp thang máy đã hoàn thành việc lắp đặt phần cơ khí. Để đảm bảo đúng kỹ thuật cũng như để không ảnh hưởng đến các thiết bị thang máy đã được lắp đặt. Chủ đầu tư nên yêu cầu công ty thang máy hướng dẫn cụ thể.

Nếu bạn cũng đang có nhu cầu lắp thang máy cho nhà cải tạo, sửa chữa … cần được tư vấn hay đơn giản là tìm 1 đơn vị uy tín hãy liên hệ với Thanh Máy Phúc Lộc qua số Hotline : 0915165522 chúng tôi luôn sẵn sàng đồng hành cùng bạn.